





Grundrisse
MUSTERHAUS IN SEEBRUCK
Ambienti+ gibt jedem Lebensentwurf seinen Raum. Zur Inspiration für Ihr persönliches Ambienti+ präsentieren wir Ihnen unten weitere vorgedachte Grundriss-Entwürfe.
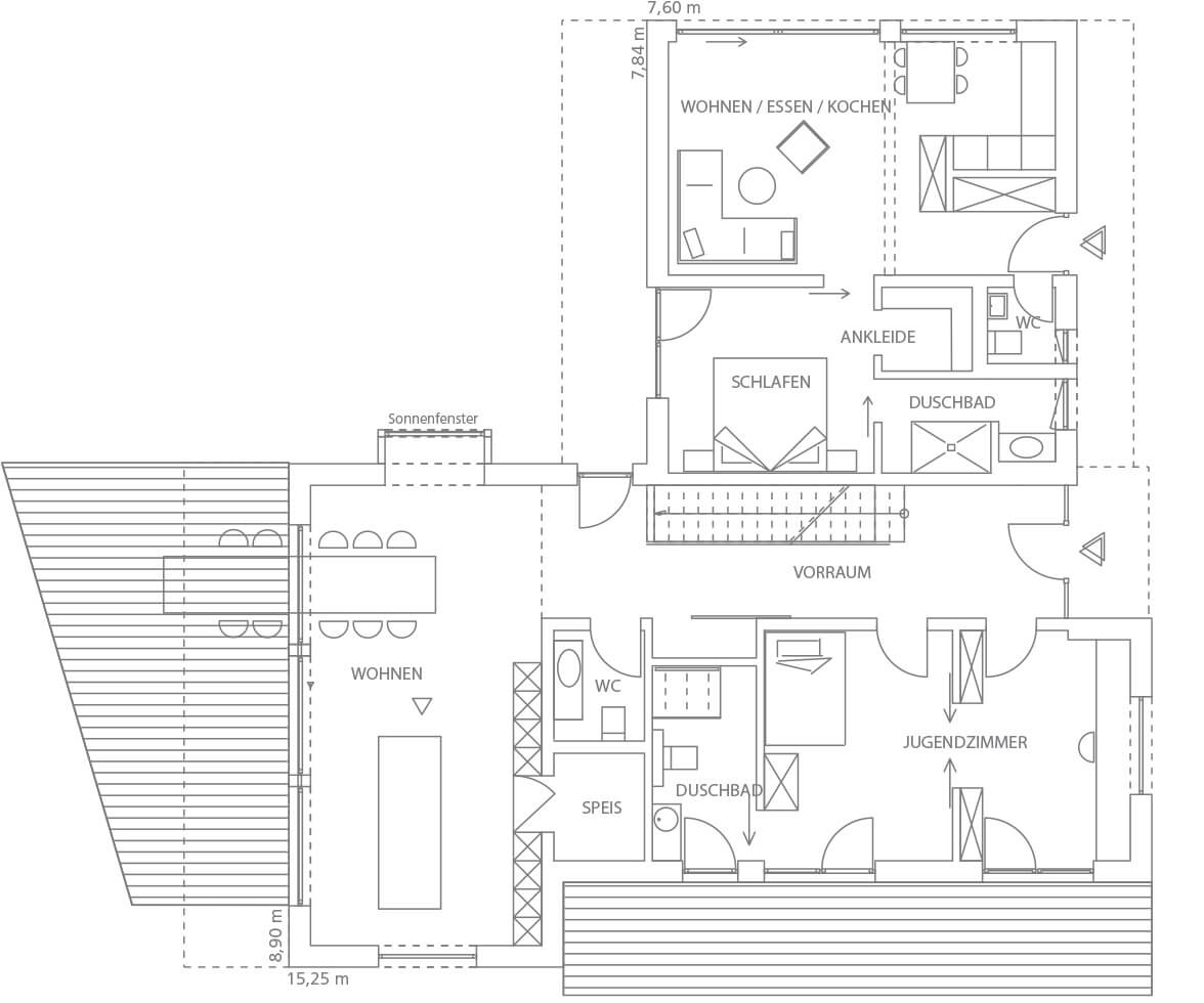
Erdgeschoss
Obergeschoss
ALLES FÜR DIE FAMILIE
Der Eingang bei diesem Entwurf im Schutze der Doppelgarage. Ein besonders großzügiger Wohn-, Ess- und Kochbereich im Erdgeschoss. Alle drei Schlafzimmer in der oberen Etage. Das Ensemble aus Elternschlafzimmer, Ankleide und Bad gefällt hier besonders durch den herausragend-großen Balkon.
Erdgeschoss
Obergeschoss
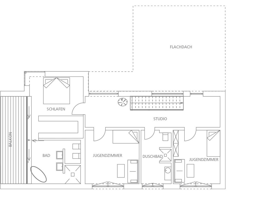
Wohnen, Arbeiten - Wellness
Das Obergeschoss klassisch für die Schlafzimmer reserviert – und zugleich Wellness-Oase mit Yoga-Podest und Dachterrasse. Die Jugendzimmer an der Südseite mit geschütztem Loggia-Balkon. Ein weiteres Zimmer findet im Erdgeschoss Platz. Der Anbau ist als Büro mit großer Fensterfront angelegt.
Erdgeschoss
Obergeschoss
ZWEI HAUSHALTE UNTER EINEM DACH
Die Trennung der Etagen in zwei selbstständige Wohneinheiten lässt viele Nutzungsmöglichkeiten offen. Denkbar ist eine Vermietung der oberen Etage oder die Bewohnung als Doppelhaus. Das Erdgeschoss ist barrierefrei, weshalb sich dieser Entwurf auch bestens für großzügiges Wohnen im Alter anbietet.
Erdgeschoss
Obergeschoss
RAUM FÜR GENERATIONEN
Diese Erdgeschoss-Lösung zeigt ein voll ausgebautes Appartement mit eigenem Eingang, eigener Terrasse – und Durchgang zum Haupthaus. Perfekt geeignet für den Familienanschluss der Großeltern. Später vielleicht einmal für die erwachsenen Kinder, als Büro oder Atelier.
Erdgeschoss
DIE KLASSISCHE EINLIEGERWOHNUNG
Eine weitere Lösung für die Verwendung des Anbaus ist die klassische Einliegerwohnung ohne Durchgang zum Haupthaus. Zur Einquartierung von Freunden oder Verwandten, zur Vermietung als Ferienwohnung – und warum nicht zur Unterbringung einer Pflegekraft im Alter?
Erdgeschoss
EINDRÜCKE VON MUSTERHAUS AMBIENTI+
Wir freuen uns auf Ihren Besuch im Musterhaus Ambienti+ in Seebruck. Bis dahin geben Ihnen unsere Bewegtbildpräsentationen einen ersten Eindruck. Bis bald am Chiemsee.
Virtueller Rundgang durchs Haus.
Impressionen aus unterschiedlichen Blickwinkeln.
Auszeichnungen
Gleiches Konzept - anderer Charakter
Ambienti+ ist Ihr ganz persönlicher Raum für die Zukunft des vitalen Wohnens. Dabei stehen Ihnen zahlreiche Gestaltungsmöglichkeiten offen. Die Vitalhäuser „Kufstein" und „Langkampfen" sind Paradebeispiele für die Wandelbarkeit von Ambienti+.
Vitalhaus Ambienti+ Impressionen
EINE GALERIE DER INSPIRATIONEN
Beim Regnauer Vitalhaus ist Ihr Geschmack das Maß aller Dinge. Lassen Sie sich inspirieren und komponieren Sie mit unseren kreativen Planern Ihren ganz persönlichen Raum zum Leben. Dafür finden Sie in der Galerie der Häuser viele gelungene Beispiele.
























